+36 (20) 441 8032

Kazincbarcika - Eladó Ipari

Elhelyezkedés
Tardonai út
Alapterület
2.400 m2
Ár
85.000.000 Ft
Hirdetés azonosító
SM0012

Leírás

Kazincbarcikán, a Herbolya városrészben eladó a „régi bányaépületként” ismert, rendkívüli adottságokkal rendelkező ipari ingatlan!

A teljes terület- 86500 m2- több helyrajzi számon szerepel:
• 32 751 m² – kivett lakóház és udvar
• 675 m² – kivett udvar
• valamint további területek (meddőhányóval együtt összesen: 8650 m²)

Elhelyezkedés:
• Aszfaltos úton megközelíthető
• Buszmegálló közvetlen közelben

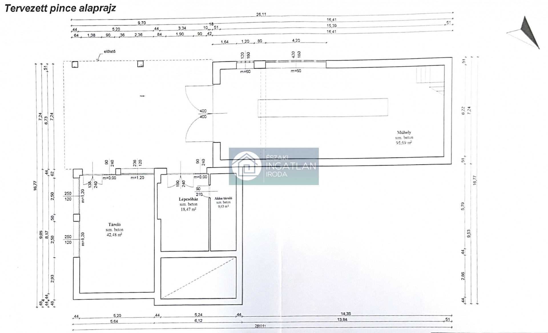
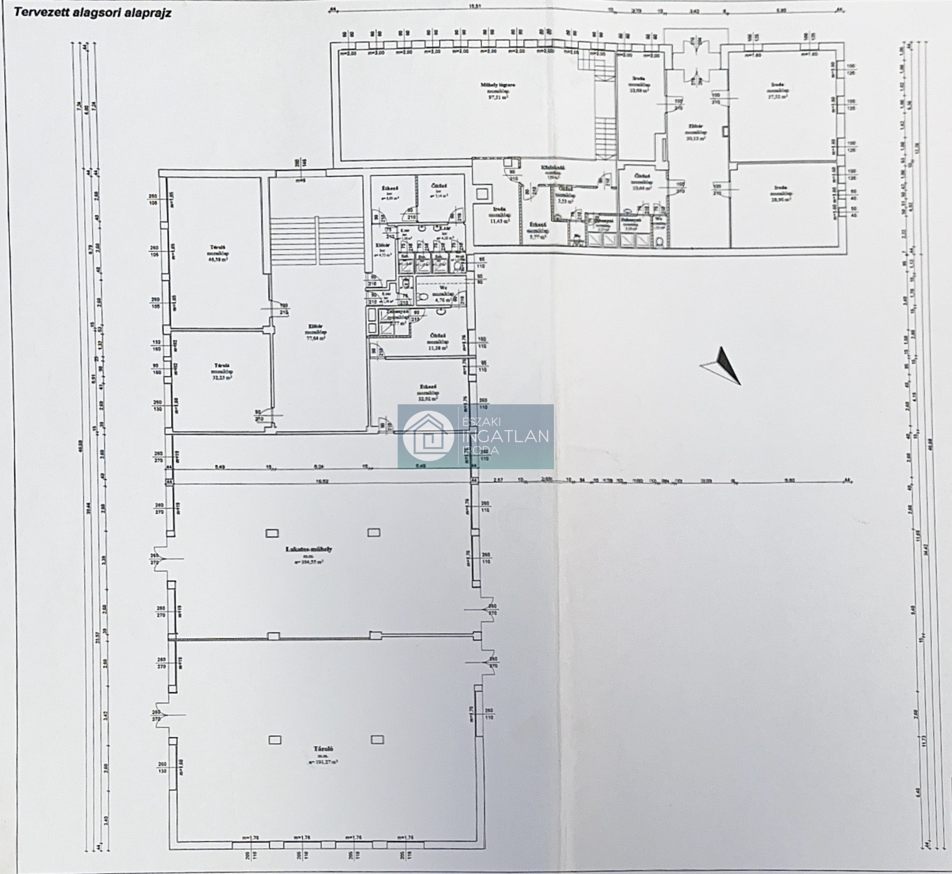
Az épületek összes alapterülete kb. 2400 m², masszív, vasbeton vázas szerkezettel.

Főbb jellemzők:
• 3 szintes főépület, szintenként ~600 m²-es csarnokokkal
• 2,8 m belmagasság
• „L” alakú, 2 szintes melléképület (iroda, rendelő, műhely funkciókkal)
• Portásfülke + külön 3 állásos garázs
• További garázs/tároló a főépület alatt
• Könnyűszerkezetes ipari épület (korábban homokszóró műhely)

⚙️ Műszaki adatok:
• Szerkezet: vasbeton váz, tégla kitöltéssel
• Villany és víz bevezetve
• Saját szennyvíz derítő
• Saját 15–20 m³-es gáztartály
• Részben gázcirkó fűtés
• Felújítandó állapot (tető felújítása kiemelten szükséges)

Környezet:
• Az ingatlan egyik oldala a Tardona-patakkal határos
• Természetközeli, erdővel övezett terület
• A meddőhányó jelenleg akácfával benőtt, amely további hasznosítási lehetőségeket kínál

Az ingatlan mérete és elrendezése rendkívül sokoldalú.
Meddőhányó hasznosítási lehetőségek:

• Ipari vagy mezőgazdasági területként hasznosítható
• Napelempark vagy energiaprojekt kialakítására alkalmas
• Fakitermelés (akác) és biomassza hasznosítás
• Rekultiváció után parkosítás, zöldövezet vagy rekreációs terület
• Extrém sportpálya (pl. motocross, downhill, airsoft pálya)
• Logisztikai vagy tárolási célú bővítési terület

Épületek hasznosítási lehetőségei:

• Ipari vagy logisztikai telephely
• Raktárbázis vagy gyártóüzem
• Munkásszálló / apartmanház (kb. 80 db ~20 m²-es egység kialakítható, jelenleg 11 szoba van kialakítva)
• Loft lakások és kreatív műhelyek
• Idősek otthona vagy szociális intézmény
• Rendezvény- vagy tréningközpont
• Sport- és rekreációs létesítmény
• Filmforgatási helyszín / kreatív ipari tér

Az ingatlan kiváló lehetőség befektetők számára, akik nagy volumenű, egyedi projektben gondolkodnak.
Hívjon ha kérdése van, ha szeretné megtekinteni!

Az ingatlan elhelyezkedése

Kapcsolati adatok

Sztari Milán

Sztari Milán

Ingatlanközvetítő és Marketing

+36-205226520-

sztari.milan@eszaki-ingatlan.hu

Érdeklődjön az ingatlanról, e-mailben!

Hasonló ingatlanok

Hívás